• Casa o chalet
  • Tipo
  • 3
  • Dormitorios
  • 2
  • Baños
  • 134,73

Descripción

En el corazón de la Vega Baja, entre montes y pinos, encontrarás el bonito municipio de Algorfa: una localidad con un gran ambiente internacional, ya que la mayoría de sus habitantes son residentes europeos que eligieron la tranquilidad de este pueblo tan acogedor para establecer su residencia habitual.

Un municipio rodeado de campos de cítricos y huertas, con todos los servicios que puedas necesitar, cómodos accesos a las principales vías de comunicación y próximo a los principales núcleos costeros, como Torrevieja y Guardamar del Segura; además, cuentas con un famoso y prestigioso campo de golf, La Finca, que con sus fantásticas instalaciones, te ofrece la excusa perfecta que para practiques tu deporte favorito todos los días del año.

Situado en este paraje de ensueño podemos encontrar los fantásticos apartamentos Saria, que a su vez forman parte del Residencial Mar Egeo; un complejo de viviendas moderno y vanguardista.

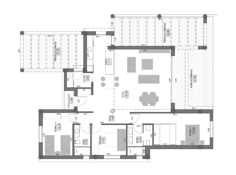
Las viviendas Saria disponen 3 dormitorios y 2 baños distribuidas en una sola planta. La zona de día la componen la cocina y el salón unidos en un solo espacio diáfano y cómodo que se abre y se funde por completo con la terraza y la piscina privada, disfrutando con ello de unas maravillosas vistas en nuestro día a día.

El dormitorio principal amplio y muy luminoso, que además incorpora un baño privado provisto de mampara de ducha, espejo y suelo radiante. Y los otros dos dormitorios son perfectos para tus niños o visitas. Sin olvidarnos de unas maravillosas zonas comunes en las que disfrutar de amplios jardines donde pasear, y refrescarnos en una gran piscina comunitaria.

¿A qué estás esperando para conocer la casa de tus sueños?

Dirección

  • Localidad Algorfa
  • Provincia Alicante
  • Área Costa Blanca Sur
  • País España

Detalles

  • Referencia: SARIA
  • Precio: 555.000€
  • Superficie: 134,73 m²
  • Terreno: 443 m²
  • Dormitorios: 3
  • Baños: 2
  • Tipo: Casa o chalet
  • Terraza: 70,4
  • Llave en Mano: No

Propiedades similares

Comparar listados

Comparar
Adrián García
  • Adrián García
This site is registered on wpml.org as a development site. Switch to a production site key to remove this banner.